Catalog
Electronice
Electrocasnice
Casă, Grădină, Reparație
Construcții și reparații
Marfe pentru animale
Articole Sportive
Articole Copii
Electronice Auto
Activități în aer liber și turism
Art și hobby
Fashion
Produse pentru business
Frumusețe și sănătate
Chişinău
Moldova
Orașul dumneavoastră:
Anenii Noi
Bălţi
Basarabeasca
Briceni
Cahul
Călărași
Cantemir
Căușeni
Ceadîr-Lunga
Chişinău
Cimişlia
Comrat
Criuleni
Donduşeni
Drochia
Edineț
Făleşti
Floreşti
Glodeni
Hînceşti
Ialoveni
Leova
Nisporeni
Ocniţa
Șoldănești
Orhei
Rezina
Rîşcani
Sîngerei
Soroca
Strășeni
Taraclia
Ștefan-Vodă
Telenești
Ungheni
Vulcăneşti
Избранные товары
Перейти в корзину
RO
RU
Principala
Catalog
Favorite
Coșul
Activități în aer liber și turism
Articole Picnic
Accesorii pentru gratar
Allgrill
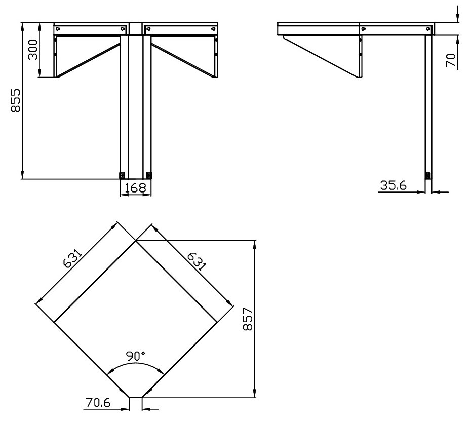
Element de legătură între module Allgrill Modul 12 - 90° 850M12
Element de legătură între module Allgrill Modul 12 - 90° 850M12
în 3 plăți fără dobândă
Credit 0% 6 luni
Cod: 751668
10.350
lei
Adaugă în coș
În coș
Добавить товар в избранное
Produsul este epuizat
Livrare în:
Chişinău
Livrare prin curier
gratis
Toate produsele
Allgrill
Specificații
Tip
conector
Scopul
pentru masa
Dimensiuni
85.5х63.1х85.7 cm
Materialul
metal